6 pokoje
2 łazienek
100m²
Listed on paź 28, 2025
6 pokoje
2 łazienek
100m²
Na sprzedaż wyjątkowy dom rekreacyjny położony w malowniczej Nowej Pasłęce – miejscu, gdzie czas płynie wolniej, a każdy dzień zaczyna się śpiewem ptaków i zapachem świeżego powietrza.
To idealna propozycja dla osób, które marzą o odpoczynku w zgodzie z naturą – w otoczeniu wody, zieleni i ciszy, z dala od miejskiego zgiełku.
Lokalizacja – Twoja przystań spokoju:
Nowa Pasłęka leży w sercu obszaru NATURA 2000, nad Zalewem Wiślanym, w sąsiedztwie Braniewa i granicy z Obwodem Królewieckim, niegdyś zwanym Kaliningradzkim. To raj dla żeglarzy, kajakarzy, wędkarzy i miłośników spacerów a także wycieczek rowerowych- ponieważ przez miejscowość przebiega Wschodni Szlak Rowerowy Green Velo jako najdłuższy, spójnie oznakowany szlak rowerowy w Polsce. W okolicy znajdziesz liczne ścieżki rekreacyjne i urokliwe plaże – idealne do kąpieli, pikników i zachodów słońca nad wodą.
Dom – ciepło, przytulność i styl:
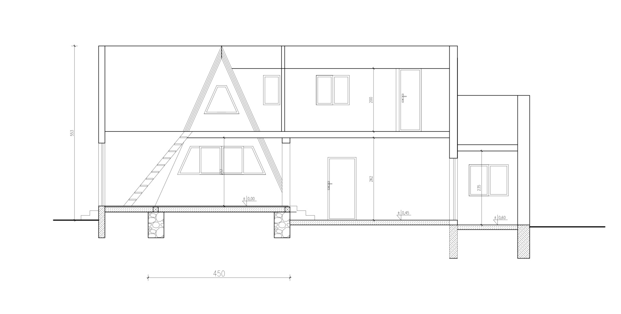
Dom typu „Brda” to bardzo popularny w czasach PRL drewniany dom letniskowy, o przekroju poprzecznym w kształcie litery A, z dwuspadowym dachem o kącie nachylenia 60°. Ten konkretny został wybudowany w 1978 r.,
Z myślą o komforcie przez wszystkie 12 miesięcy w roku 2002 został rozbudowany, gruntownie zmodernizowany oraz ocieplony. Teraz to solidny, klimatyzowany na piętrze i ogrzewany kominkiem z rozprowadzeniem ciepła dom, z którego możesz korzystać nawet cały rok.
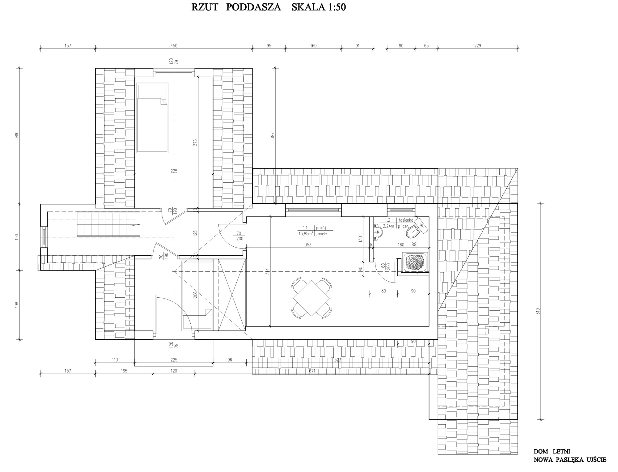
Na dwóch kondygnacjach znajduje się:
6 pokoi, w tym salon z kominkiem – idealny na rodzinne wieczory,
2 łazienki,
w pełni wyposażona kuchnia z wyjściem na ogród,
na terenie działki znajduje się spory garaż, w którym będziesz można przezimować część letniego sprzętu rekreacyjnego.
Wszystkie media: prąd, woda, szambo wsiąkowe.
Działka – Twój prywatny ogród i pomost:
Urokliwa działka rekreacyjna zaprasza do relaksu w cieniu drzew lub porannej kawy z widokiem na wodę.
Nieruchomość obejmuje dzierżawę miejsca na którym znajduje się prywatny pomost z dwoma miejscami cumowniczymi – idealnymi dla łodzi żaglowej lub motorowej do 9 metrów długości. Do pomostu został podciągnięty prąd- dodatkowe oświetlenie będzie pomocne żeglarzom się wypakować po późnym powrocie lub zapakować na wczesne wypłynięcie. Dzierżawa obowiązuje jeszcze przez 9 lat, a jej ROCZNY koszt to tele ile kosztuje podstawowy abonament Netflix!
Dlaczego warto:
Cicha, kameralna okolica – gwarancja spokoju i prywatności,
Bliskość wody – idealna dla miłośników żeglarstwa i rekreacji,
Możliwość całorocznego zamieszkania,
Klimat mazurskiej sielanki – drewno, kominek, zapach lasu i szum wody.
Bezpieczeństwo- całoroczna ochrona zadba o nieruchomość podczas twojej nieobecności a dzięki kamerom- na ekranie smartfona będziesz mógł zobaczyć na przykład jaka jest pogoda.
To miejsce, w którym naprawdę można złapać oddech – zanurzyć się w naturze, poczuć wolność i na nowo odkryć radość z prostych chwil.
Nowa Pasłęka – Twój azyl na Warmii i Mazurach.
Powyższa oferta ma charakter informacyjny i nie stanowi oferty handlowej w rozumieniu art. 66 §1 Kodeksu Cywilnego.
Informacje Dodatkowe
Rodzaj Nieruchomości
Dom
Data Budowy
Data Budowy 1978
Parking
Garaż Prywatny w nieruchomości
Powierzchnia
100m2
Ogród
Prywatny Ogród
Powierzchnia Działki
Brak danych
Udogodnienia
Zapytaj Agenta
Ogrzewanie
Brak Danych
Piętro
Zapytaj agenta
Basen
Brak Danych
Balkon | Taras
Taras
Widok
Inny
Winda
Nie dotyczy
Lifestyle
Miasto
Dodatkowe Udogodnienia
Poddasze/Strych
Jesteś zainteresowany?
Wypełnij formularz





























